
Carbon Neutral Energy Solutions Laboratory
Built in 2012, the Carbon Neutral Energy Solutions (CNES) Laboratory Building is designed to foster industry collaboration and support translational and pre-commercial research in clean, low-carbon energy technologies.
Low-Carbon Features
While the idea for CNES was to build a space that brings together people working on low-carbon energy, Georgia Tech also wanted to make the building itself a demonstration for applied low-carbon energy technologies. The CNES building is a living lab with an innovative “no frills” design and net-zero carbon emissions. The 42,000-square-foot facility is intended to set a new standard for sustainable design for buildings of its type by optimizing passive energy technologies, reducing electricity loads, and maximizing the use of renewable energy.

Rooftop Solar Array
The solar array generates 396,000 kilowatt hours per year of electricity, offsetting the building’s energy needs.

DER Living Lab on Campus
With rooftop solar arrays, a Stryten Lead BESS system, and EV charging stations in the parking lot, CNES is a hands-on hub for live experiments in distributed energy resources (DER).

Certified as LEED Platinum
CNES is the first Georgia Tech building to be certified by the U.S. Green Building Council.

Permeable Surfaces
The surface of the parking lot is permeable to minimize storm water run-off and collect rain water for repurposing within the building.

On-site Cistern
The onsite cistern collects rainwater from the rooftop of the building and the the parking lot pavers for holding and stormwater management.

Net Positive Energy
CNES produces more energy than it consumes during peak solar production times. The excess energy is redistributed to campus for consumption.
Research Groups
Research at CNES spans all aspects of the energy cycle for both renewable and fossil fuel based energy sources making it the hub of applied energy research at Georgia Tech. Core research conducted within the lab includes, solar technologies, combustion, gasification, catalysis and bio-catalysis, sustainable chemical processes, as well as carbon capture and sequestration. Some of the key research areas housed within CNES include
- High-efficiency combustion systems
- Alternative fuels and renewable energy systems
- Biomass gasification
- Advanced catalytic and gas separations technologies
- Capture and recycling of carbon from power plants and combustion engines.
Please click the links below to learn more about the individual research groups working out of the CNES building.
Facilities
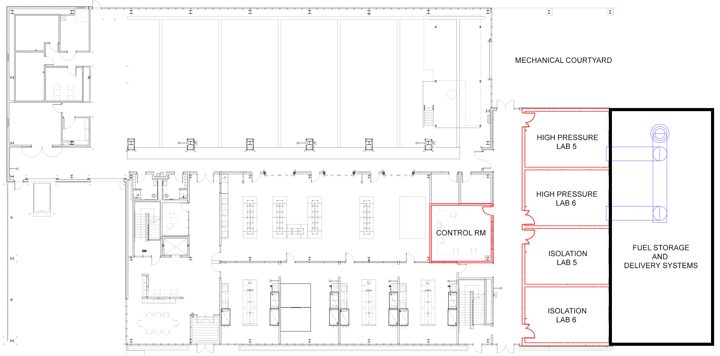
Floor Plan

Equipment
The Carbon Neutral Energy Solutions Laboratory is an academic research facility dedicated to using the latest diagnostic tools for the study of energy technologies. The facility is equipped with an open laboratory with a number of test stations, each equipped with electrical power, intermediate-pressure air supply, pressurized natural gas, and other amenities. The lab space also consists of isolation rooms, which are equipped similarly to the open lab, but which are optically and acoustically isolated from the rest of the lab. CNES has two high pressure labs and two isolation labs.
Machine Shop Information
Click the button below to access information related to the CNES machine shop.
CNES Contacts
The CNES building is part of the North Avenue Research Area (NARA) section of the Georgia Tech campus.
Building Contacts
Carbon Neutral Energy Solutions Lab (CNES) – Building 199
Primary Contact: Tyler Pennel
Title: Building Coordinator – Carbon Neutral Energy Solutions Lab
Affiliation: Strategic Energy Institute | Georgia Institute of Technology
Location: 635 Strong Street, Atlanta, GA 30318 | Room 112 (BTZ)
Email: tpennel3@gatech.edu
Phone: (720) 442-6313
Secondary Contact: Kristopher Manion
Title: Lab Manager II – North Avenue Research Area
Affiliation: College of Engineering | Georgia Institute of Technology
Location: 495 Tech Way NW, Atlanta, GA 30318 | Room 108 (CNES)
Email: kristopher.manion@gatech.edu
Phone: (678) 596-6976
NARA Complex
Primary Contact: Kristopher Manion
Title: Lab Manager II - North Avenue Research Area
Supports Operations at: BTZ, CNES and other COE NARA buildings
Affiliation: College of Engineering | Georgia Institute of Technology
Location: 495 Tech Way NW, Atlanta, GA 30318 | Room 108 (CNES)
Email: kristopher.manion@gatech.edu
Phone: (678) 596-6976
Buzzcard Access
All individuals entering the building must have their Buzzcard information registered in the building access database. Please contact Kristopher Manion if you need access.
All other visitors and guests must be accompanied at all times by a Georgia Tech team member with building access.
Tours
Tours of CNES are available on request and subject to availability and safety and security protocols. Contact Kristopher Manion for more information.